潮風感じるカリフォルニアスタイルの住まいでおうち時間を最高に楽しむ暮らし「Coast」
潮風感じるカリフォルニアスタイルの住まいでおうち時間を最高に楽しむ暮らし

特徴
-
カッコよさと暮らしやすさを叶えた「Coast」。
優れた省エネ性能や耐震・制振性能、さらにZEH対応など基本性能はしっかり確保。
そして、家族の暮らし方に合わせてカスタマイズも可能です。
変化する好みに合わせて、暮らしも変えていきたいという、思いに応えられるタイプの家です。
-
PLAN DATA
1階床面積 65.62㎡
2階床面積 36.02㎡
延床面積 101.64㎡(30.74坪)
施工面積 129.99㎡(39.31坪)
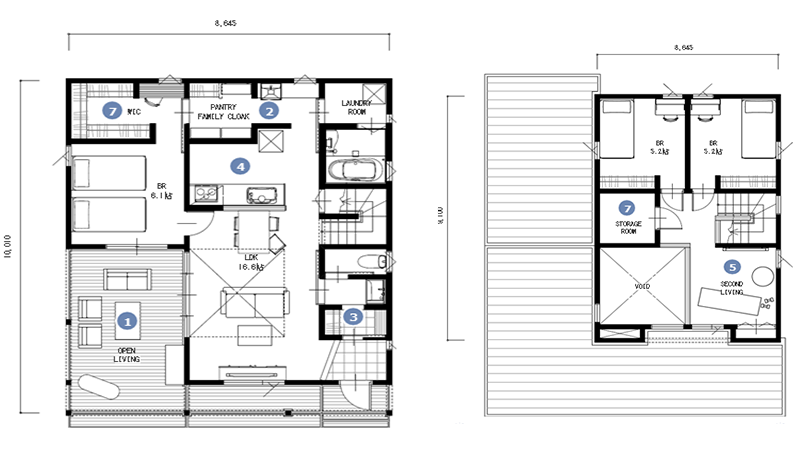
- ウチ/ソトを家族で楽しむ、オープンエアリビング
- 効率的な家事動線"アクティブストレージ"
- ウイルスを持ち込まない動線計画"ハビステーション"
- 開放感のある対面キッチン
- 距離感がちょうどいい"2ndリビング"
- 生活スタイルに合わせて間取りをカスタマイズ
- 私たち好みの暮らし
カッコよさと暮らしやすさを叶えたバリエーション
性能
ZEHレベルをクリア

基本断熱性能はZEHレベルを
クリアするので快適で経済的
HUCKは政府が推進しているエコ住宅「ZEH」をクリアする断熱性能が標準仕様。
断熱性が高く暖かい住宅は健康によいことが科学的に証明されています。

太陽光発電を搭載すればZEHに対応
さらに太陽光搭載でZEHに対応します(ただし給湯器他採用機器仕様による)。
HUCK BASEはこのような住宅に求められるニーズを考慮し、太陽光発電に柔軟に対応する片流れ屋根を採用しています。
※HUCK LOG断熱性能はZEH対応しておりません。
地震に強い木の家。家族の命と財産を守る。

集成材
木の良さを生かし強度と均質性を高めた構造材
HUCKの柱・梁などの主要構造材には「エンジニアリングウッド(構造用集成材)」を使用しています。
エンジニアリングウッドとは、木材がもつ短所を極力減らすために、無垢材の良質な部分だけを厳選し、ひき板として積層接着したものです。
「割れにくい」「反りにくい」「曲がりにくい」「ねじれにくい」などの特徴をもつため、品質のばらつきが少なく高い安全性、高品質を実現できます。

金具接合
高耐震化させる金具結合で、地震に強い構造
軸組の主要部分に、厚い鉄板やドリフトピンなどを使った信頼性の高い接合金具を採用し、建物に強さと粘りを付加しました。
地震の揺れによって力が集中する接合部の強度を高め、構造全体の品質を安定させ、地震に強い家を作ります。

耐震壁
台風や地震の揺れから建物を守るモノコック構造
地震の衝撃を構造用面材が貼られた面で受け止めるため力が分散され、建物のネジレや変形を防ぎ、高い耐震性能を実現できます。

剛床
一体化した床の面で「ねじれ・ゆがみ」を抑える
床に伝わる地震や台風の力に耐え、分散し、スムーズに伝えるために、HUCKでは1・2階床に、24mm厚の構造用合板を使った剛床構造を採用しました。
2階床には特殊な接合ビスを使用し、床倍率3.0倍を実現。
地震に対する強さ、構造の安定感をさらに高めています。
強い、確かな構造設計

ベタ基礎
建物荷重を「面」で受け、不同沈下を防ぎ、
地震に強いベタ基礎
床面全体に格子状に鉄筋を入れコンクリートを打ち、基礎の底面全体が鉄筋コンクリートの面構造になることで、家の荷重をバランスよく分散させることができます。
地震等で大きな力が加わっても、立ち上がり幅150mmの厚くて強固な基礎全体が、建物をしっかり支えます。
広い面積で支えるベタ基礎は少々軟弱な地盤(均等に軟弱な地盤)であっても、沈下を均等に地盤に伝えるため、布基礎のように部分的に沈下して変形するようなことはありません。

制振
鉄の特性を利用して揺れにブレーキ
木造軸組用塑性変形鋼板ダンパー
EQ GUARD(イーキューガード)
鉄の鋼材が地震の揺れで変形するとき、同じだけの地震エネルギーを吸収して建物の揺れを抑えます。鉄は何度でも伸縮を繰り返して、安定した制振効果を維持します。




